コンテンツへスキップ

十和田・八戸・三沢・青森の分譲住宅 DC(デザイナーズコンパクト)(株)アットプラス

青森県の住宅会社「株式会社アットプラス」です。青森市、八戸市、十和田市などのお得な土地情報やリーズナブルな価額で購入できるDC(デザイナーズコンパクト)住宅を販売しております。DC住宅は、資産形成にも適しており10年後、20年後も考えた無理をしないコンセプトです!アッ、と感じる驚きをプラス。アットホーム(くつろぎ)をプラス。優れたarchitect(建築家)と、technic(技)をプラス。

前の画像

geaj_b_03

投稿日: 2025年11月10日 フルサイズ 1440 × 960

投稿ナビゲーション

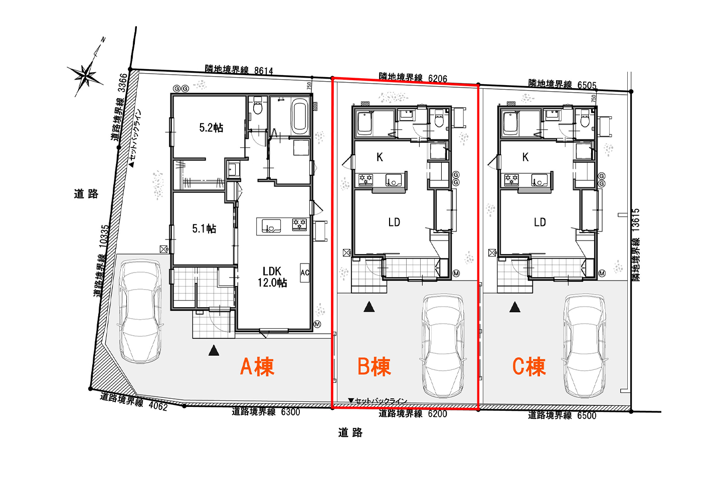
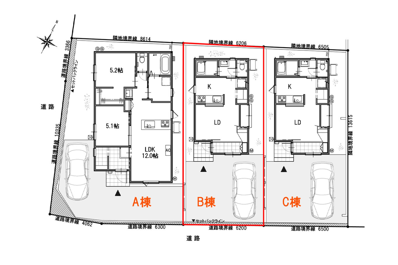
長者三丁目 B棟(1LDK+フリースペース)1,845万円 内で公開

株式会社 アットプラス

株式会社 アットプラス

メインメニュー

  • HOME
  • Q&A
  • DC分譲情報
  • フォトブック
  • お問い合わせ
  • 会社概要
  • リンク

株式会社 アットプラス

  • NEWS
  • DC分譲情報
  • フォトブック
  • お問い合わせ
  • 会社情報
  • リンク
  • お問い合わせ
  • 0120-39-5040
    受付時間: AM10:00~PM5:00
    定休日:水曜日
Copyright © at+ All Rights Reserved.
十和田・八戸・三沢・青森の分譲住宅 DC(デザイナーズコンパクト)(株)アットプラスLogo Header Menu
  • HOME
  • Q&A
  • DC分譲情報
  • フォトブック
  • お問い合わせ
  • 会社概要
  • リンク